Emplacement privilégié dans un secteur résidentiel à 150 m de la plage du Port et 800 m du centre ville,
Caractéristiques du terrain à bâtir :
Surface de 476 m2.
Situé dans la zone UDm du Plan Local d'Urbanisme. Coefficient emprise au sol : 30 %.
Terrain de forme rectangulaire comportant une façade de 14 m environ et une profondeur de 34 m environ.
Permis d'aménager obtenu.
Ensemble des réseaux de raccordement existants à la rue, branchements à réaliser par l'acquéreur.
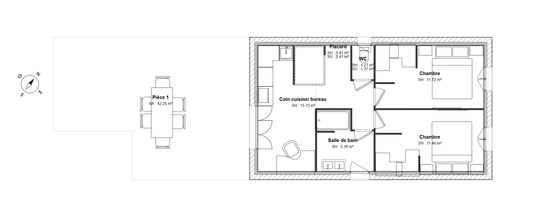
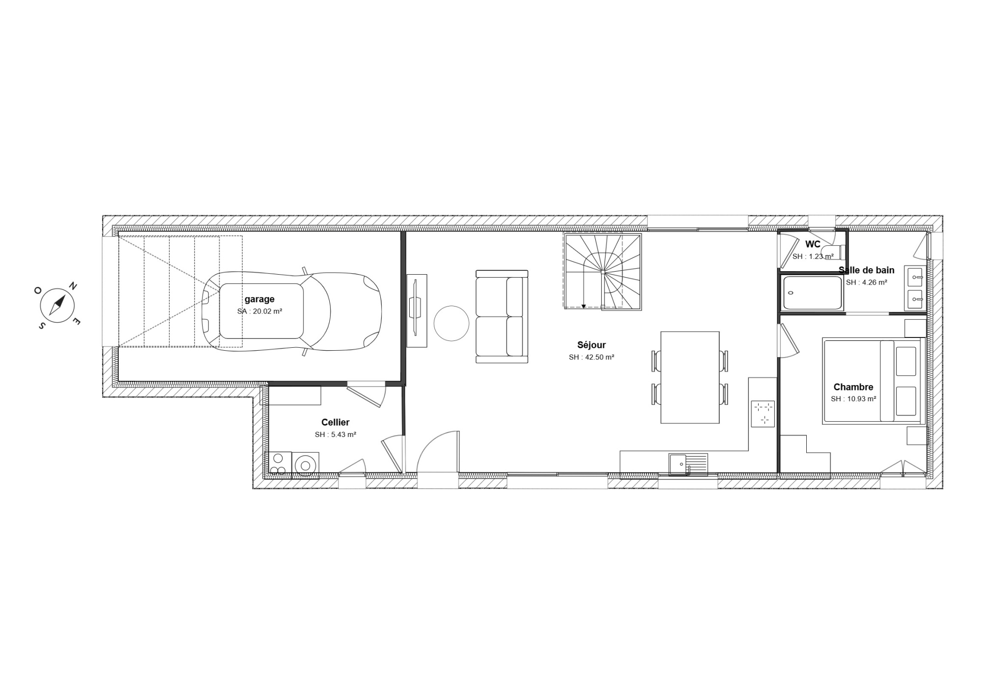
DÉCOUVREZ À TITRE INDICATIF UN PROJET DE CONSTRUCTION DE MAISON RÉALISÉ EN 3D PAR NOTRE PARTENAIRE (budget construction non inclus dans le prix du terrain).
POSSIBILITÉ D'ADAPTER LE PROJET SELON VOS ENVIES.
Honoraires inclus charge acquéreur : 5 % – Prix net vendeur : 225 000 EUR
Les informations sur les risques auxquels ce bien est exposé sont disponibles sur le site Géorisques : www.georisques.gouv.fr